微信
一、 产品概述
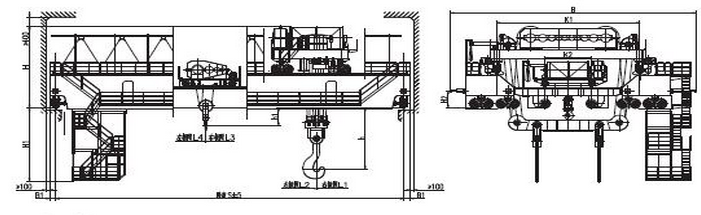
1、 铸造起重机是炼钢连铸工艺中的主要设备。主要用于吊运和转运液态钢包。
2、 从总体构造上可分为:双梁双轨、四梁四轨、四梁六轨等型式。前两种一般用于中、大吨位铸造起重机,第三种一般用于特大吨位铸造起重机。
3、 我公司设计制造的铸造起重机具有技术先进、结构新颖、安全可靠、经济耐用、维护简单等特点。
4、 另外,我公司的铸造起重机可提供以下功能,供用户选配:可旋转吊具;龙门钩钩距可变;载荷的称重及显示。
二、产品简图及技术规格(YZ280/75-320/80t)

