微信
一、 产品概述
1、 QD型吊钩桥式起重机主要应用于各种室内车间。根据利用等级和载荷状态的不同,分为A5、A6两种工作级别。
2、 司机室平台入口方向分为侧面入口、端面入口和顶面入口三种。
3、 司机室可以左端安装,也可以右端安装。
4、 大车导电可以用安全滑触线也可以用角钢,既可以在司机室对侧,也可以在司机室同侧。
5、 该起重机的动作操作全部在司机室内完成。
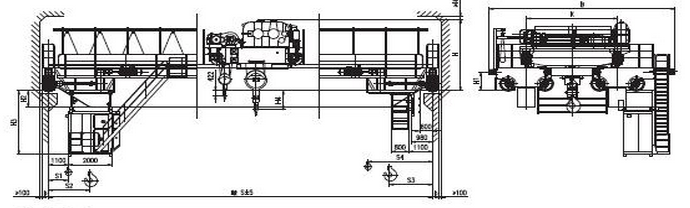
二、 产品简图及技术规格(QD100/20t)

