用户名:
密码:
注册
其他账号登录
微信
网站首页
平台特色
公司介绍
重点推介
设备租售
需求设备
业务委外
承接业务
技师资源
需求技师
技术储备
在线求助
检测服务
求助检测
最新成果
成果需求
行业动态
招标信息
免费发布租赁设备信息
网站首页
>
设备出租
盾构用门式起重机
河南卫华重型机械股份有限公司长沙分公司
价格:
¥面议
设备类型: 起重机运输机械
型号:
品牌: 国产
产地 : 进口
所在区域: 湖南长沙
主要参数:
加工能力: 见备注
详细地址:查看申请
联系人:
查看申请
电话:
查看申请
详情描述
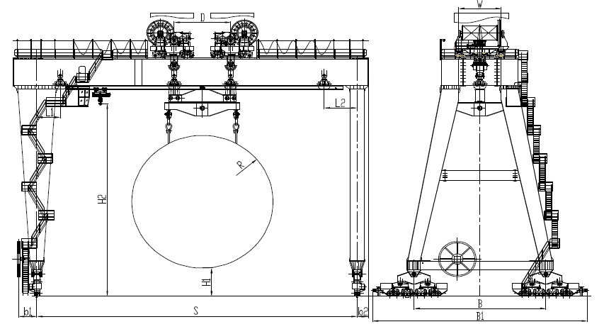
盾构用门式起重机
一、
产品概述
1、
盾构用门式起重机主要用于地下非开挖设备盾构机的刀盘和盾体的安装,以及施工过程中隧道支持管片的吊运。
2、
采用志用吊具,吊具可
360
。
旋转,适合刀盘不同角度的安装。
3、
采用双小车结构,两小车可联动,抬吊刀盘,也可单独作业吊运管片。
4、
起升采用开式齿轮传动,节约了成本。
二、产品简图与技术规格(
400t)
湖南工匠--制造协作云服务平台 Copyright © 2010-2016 湖南云协网络信息科技有限公司 www.hunangj.com
网站合作:
高考数据网
-
单招网
设为首页
|
加入收藏
|
广告服务
|
联系方式
|
关于我们
|
本网动态
|
法律声明
|
联系客服
电话:0731-85780201 传真:0731-85780201 湘ICP备15006475号-2
湘公网安备 43019002000053号